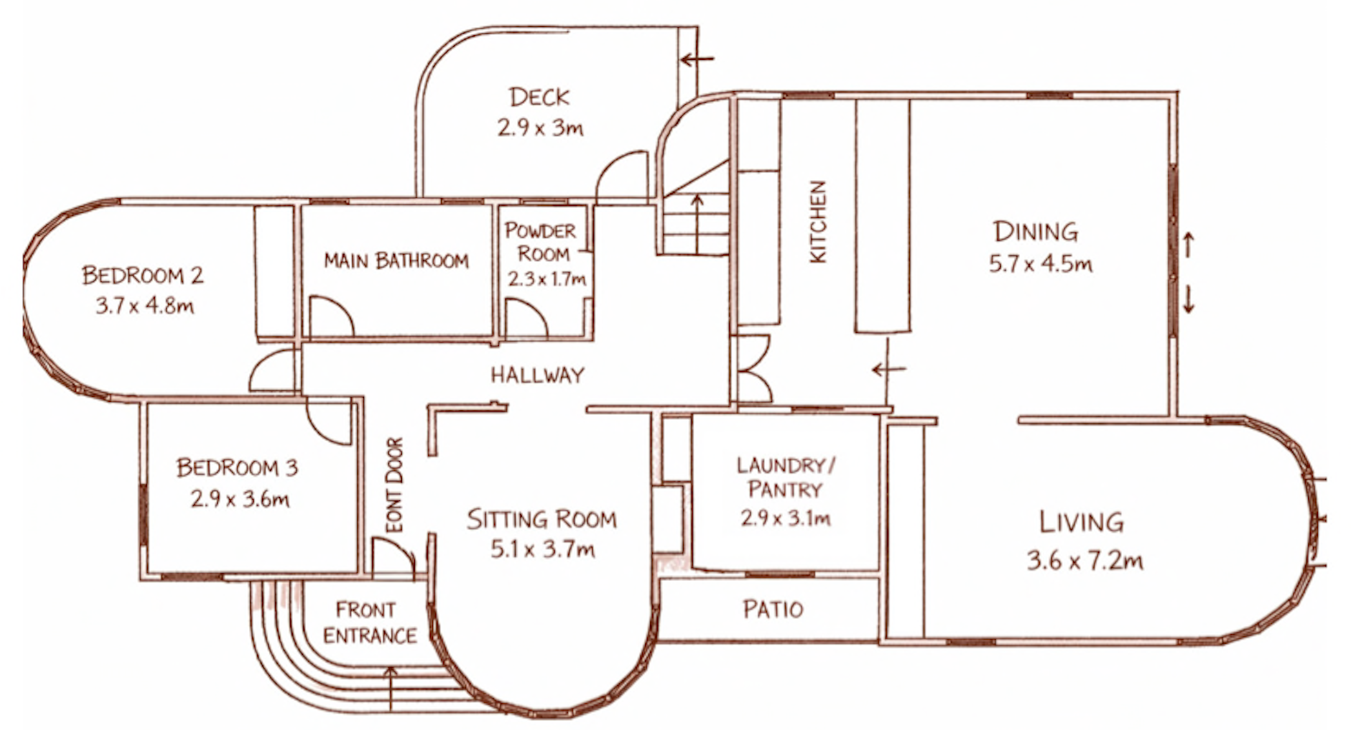
Floor Plan Review
Many of our clients engage us at floor plan stage - before approval or construction - seeking confidence that their layout truly supports the way they want to live.
At this point, we’re doing more than reviewing flow. We’re testing budget alignment, natural light and aspect, spatial proportions and long-term flexibility - ensuring the home performs beautifully now and well into the future.
We’ve formalised this into two structured review pathways:
The Clarity Session – a focused one to two hour review for early or preliminary plans.
The Strategic Plan Review Session – a comprehensive, multi-touchpoint process for deeper refinement.
If you already have plans, select the pathway that best suits your stage and then submit them for review.
If you don’t yet have plans, we’d still love to hear from you.
Early conversations often lead to the strongest outcomes - and we can guide you from the very beginning.
Because the right decisions, made early, shape everything that follows.

